Кронштейны для крепления осветительных приборов
Комплексные поставки кабельно-проводниковой продукции
Быстрая сборка, комплектация и отгрузка заказа
Отслеживание товара по трекеру
Оформление заявки в любой форме по удобному вам каналу коммуникации
Почему выгодно работать с нами
Обширный список поставляемой продукции
Отсутствие юридических и финансовых рисков
Максимально выгодные для заказчика ценовые предложения
Гибкая система оплаты заказов
Соответствие продукции ГОСТ и ТУ
Клиентоориентированность сотрудников
Многолетний успешный опыт работы сотрудников компании в данной отрасли
Гибкость логистических схем с доставкой до объекта
Гарантия низких цен
благодаря партнерским взаимоотношениям
с более чем
кабельно-проводниковой продукции и транспортными компаниями
ведущими производителями
50
Однорожковые консольные кронштейны
Кронштейны для крепления осветительных приборов
Кронштейн консольный двухрожковый разнонаправленный под 90 градусов
Кронштейн консольный двухрожковый однонаправленный
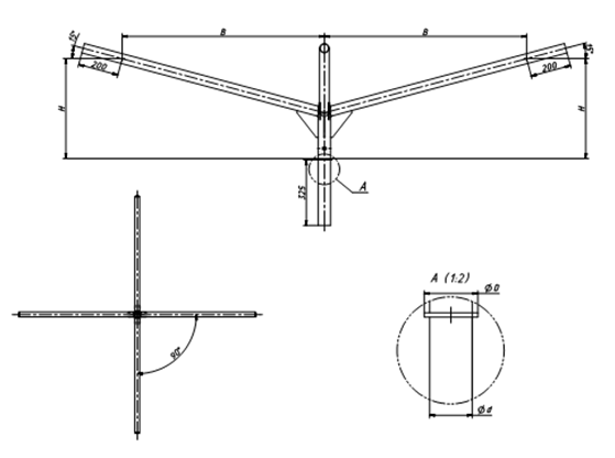
Кронштейн консольный двухрожковый разнонаправленный
Кронштейн консольный четырехрожковый
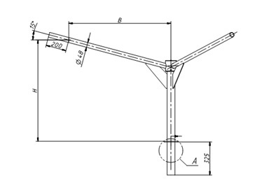
Трёхрожковые консольные кронштейны (под 120 градусов в плане)
Персональный менеджер
За каждым клиентом закреплен собственный менеджер, что гарантирует быстрые ответы по текущим запросам, квалифицированные консультации и подбор продукции в соответствии с Вашими требованиями.
Профессиональные квалифицированные консультации по товару
Экономия времени
Оперативное принятие решений по любым вопросам
Подберем нужную марку и рассчитаем необходимое количество материалов
Работаем по всей России и в странах СНГ
Остались вопросы?
Укажите свои контактные данные. Менеджер свяжется с вами в течение 15 минут.
Нажимая на кнопку, вы даете согласие на обработку персональных данных и соглашаетесь c политикой конфиденциальности